YOUR BRAND NEW HOME

This brand new, brick home with an open floorplan will tick all the boxes.

Your new home welcomes you with an impressive layout boasting 3 bedrooms, two spacious living areas and a great outdoor entertaining space. With an easy flowing floor plan and generous proportions, there is plenty of space for the whole family.

-          Brick construction

-          Open plan lounge, kitchen and dining

-          Modern kitchen with dishwasher

-          Walk-in pantry

-          Second living room

-          3 bedrooms with built-in robes

-          Ensuite adjoins bedroom 1

-          Bathroom has freestanding bathtub, shower, vanity and separate toilet

-          Covered alfresco area

-          Attached garage with electric roller door

-          NBN internet

-          Elevated views over town

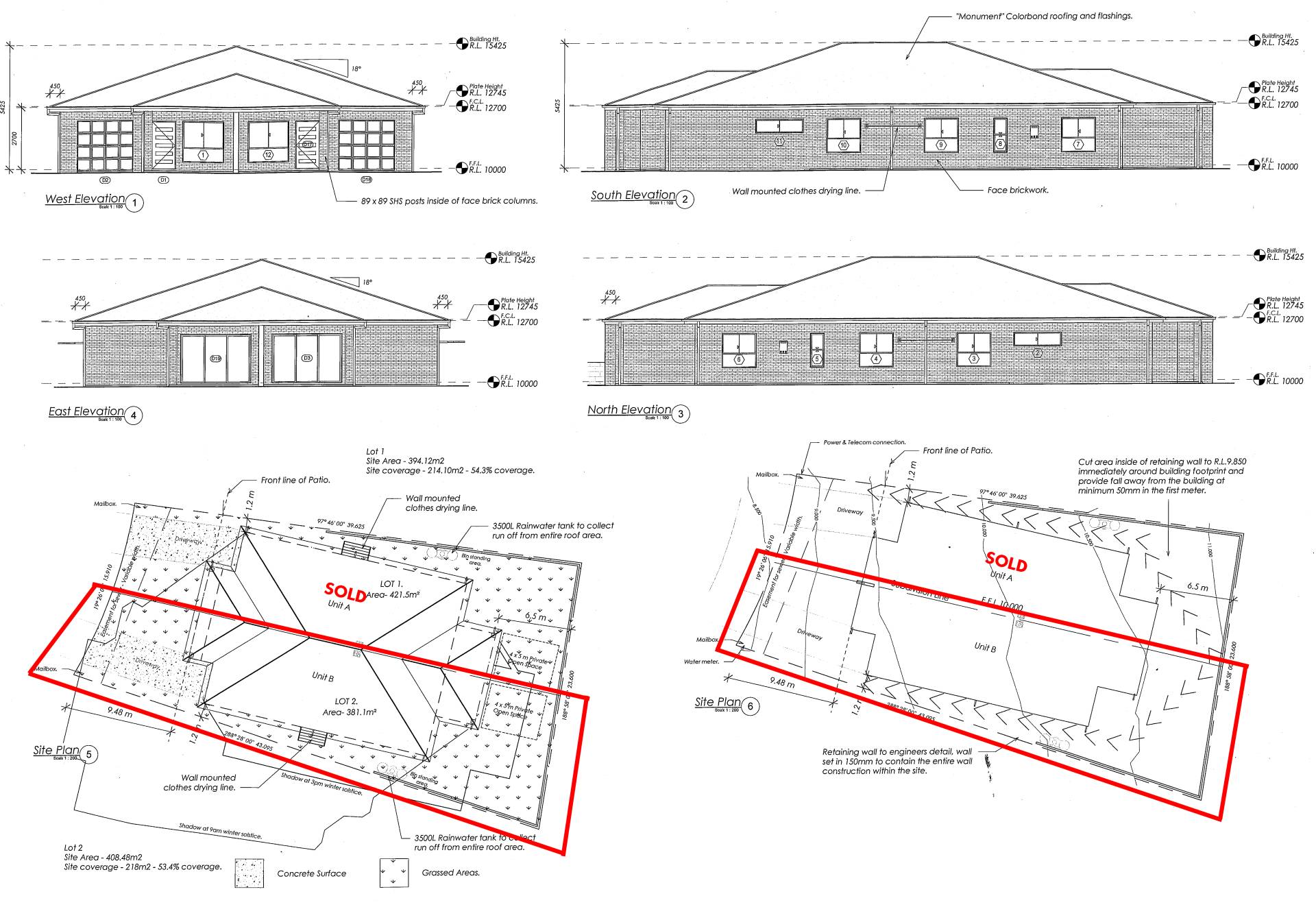
Unit B for sale. Unit A already sold.

Full list of inclusions available upon request.

This home is located a short distance from schools, Lake Inverell recreation area, the CBD and Inverell Hospital.

 

 Disclaimer: All information contained is gathered from relevant third party sources. We cannot guarantee or give any warranty about the information provided. Interested parties must rely solely on their own enquiries.

3 2 1
Suburb Inverell
Price SOLD
Property Type Residential
Property ID 798
Category House

Agent Details

Amanda Green photo

Amanda Green

0427 211 379
View Profile